Starting Base Price $625,875
Plan Name: The Milan
Square Feet: 2,672 - 2,930
Stories: 2
Bedrooms: 4
Bathrooms: 2.5
Garage: 2 Car

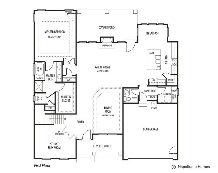
The Milan is a brand new Master Down plan that has 4 total bedrooms, 2.5 Baths, and over 2,600 square feet of living space. The Entry of this home welcomes you with a two story Foyer, an open Dining Area with optional tray ceiling to one side, and a Living Room to the other.

 

The Living Room has an option to be enclosed for privacy with double French door access, making it a perfect space for a Study or Office.

 

Continuing towards the rear of the home, it opens up into an enormous Family Room with sloped ceiling. It is truly one of the largest Family Rooms that Napolitano Homes builds! As if that weren’t enough, an optional Sunroom with 2-sided gas fireplace makes this open space even larger. Connected to the Family Room is the large Kitchen with a huge 4′ x 7′ gourmet island, as well as a Breakfast Nook. A Family Entry connects the 2 Car Garage to the Kitchen, and there is a separate Laundry Room with folding counter off of the Entry. The Owner’s Suite is secluded on the opposite wing of the first floor for added privacy.

 

Upstairs, there are 3 generously sized Bedrooms and 1 Full Bath.